Casa indipendente in vendita

Ferrara, Via della Ginestra - Cocomaro Di Focomorto
€ 250.000
6 locali 6 locali
269 Mq 269 Mq
4 bagni 4 bagni

Casa indipendente in vendita

Ferrara, Via della Ginestra - Cocomaro Di Focomorto

Descrizione annuncio

A pochi minuti da Ferrara, nella tranquilla località di Cocomaro di Focomorto, proponiamo una casa indipendente in vendita, perfetta per chi cerca spazio e comfort.

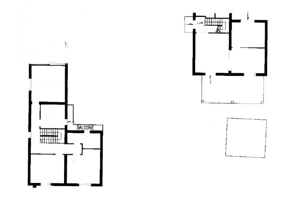
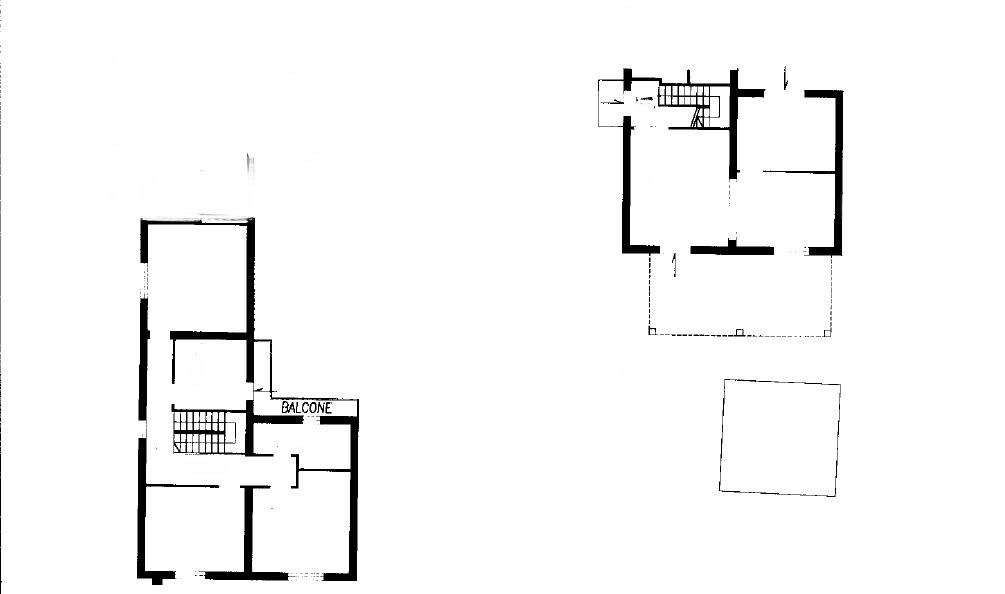
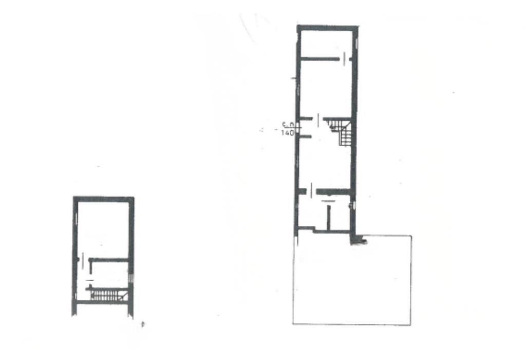
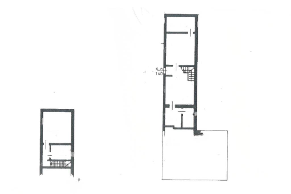
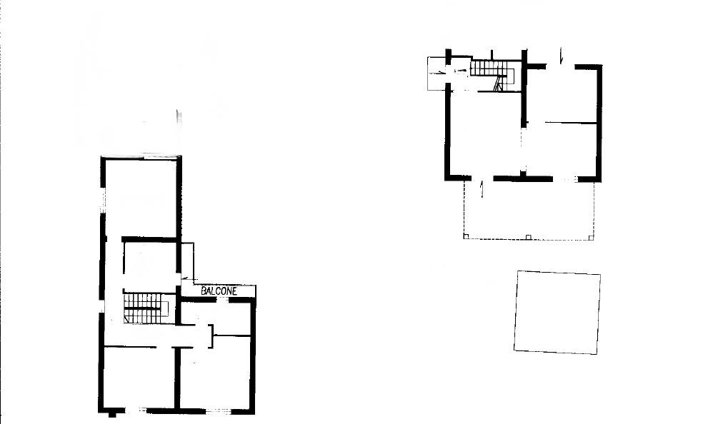
Con una superficie di 175 mq, l'immobile è composto da due unità distinte, ma adiacenti e collegate ideale per na soluzione genitori/ figli.

La casa ristrutturata negli anni 2000, è composta da due unità :

La prima di 150 mq ca. è composta al piano terra da locali attualmente ad uso taverna utilizzati come zona giorno; mentre al piano superiore sono presenti tre ampie camere da letto, due bagni e balcone.

La seconda di 100 mq ca. si compone a piano terra di cucinotto, sala da pranzo, soggiorno, ripostiglio e bagno; ed al piano superiore troviamo un'ampia camera da letto matrimoniale e un bagno.

Giardino privato e un'ampia tettoia offrono un angolo di relax. Un box di 21 mq ca. e la possibilità di parcheggiare diverse auto in corte. L'acceso alla corte è possibile da ambo i lati, grazie al doppio cancello automatico.

Gli infissi sono doppio vetro in legno oltre agli scuroni e alle zanzariere. Entrambe le caldaie a condensazione sono di recente installazione. Sono presenti diversi climatizzatori caldo/freddo.

La proprietà si presta a due soluzioni abitative, ideale per famiglie che desiderano vivere vicine, come genitori e figli, mantenendo al contempo la propria indipendenza. Contattaci per maggiori dettagli o per organizzare una visita. 3283158781 / 0532478575

Mostra tutto

Nelle vicinanze

Trasporto pubblico Trasporto pubblico
Ferrara Città del Ragazzo
Ferrara Città del Ragazzo
1,4 Km
Cocomaro di Cona
Cocomaro di Cona
350 m
Cocomaro di Cona - Via Colombara
Cocomaro di Cona - Via Colombara
470 m
Ferrara Cona Ospedale
Ferrara Cona Ospedale
2,3 Km
Farmacia Farmacia
Pontegradella
2,6 Km
Cona
2,7 Km
Villa Fulvia
2,9 Km
Naviglio
3,0 Km
Ospedali Ospedali
Arcispedale Sant'Anna
2,5 Km
Supermercati Supermercati
Conad
2,5 Km
Interspar
2,9 Km
Negozi Negozi
Panificio "Bergonzoni"
2,8 Km
Bar Bar
Bar 99
2,9 Km
Ristoranti Ristoranti
Ristorante Pizzeria Sombrero
550 m
Ristorante "Spuntino Campagnolo"
930 m
Pizzeria Birreria "Portofranco"
1,7 Km
Ristorante Pizzeria "Da Ciro"
3,0 Km
Il Cantalupo
3,0 Km
Mostra tutto

Caratteristiche

Rif.:
61193689
Piano:
Su più livelli di 2
Totale piani:
2
Box:
1
Posti auto:
5
Balconi:
1
Mostra tutto
Prezzo Prezzo
€ 250.000
Rata mutuo Rata mutuo
€ 1.188 / mese
Spese annue Spese annue
€ 0
Proponi il tuo prezzoProponi il tuo prezzo

Classe Energetica

G
G
G
G
G
G
G
G
G
EP invernale del fabbricato:
EP estiva del fabbricato:
Anno di costruzione:
1950
Riscaldamento:
Autonomo
Tipo impianto:
A radiatori
Tipo alimentazione:
Metano

Ti interessa visionare l'immobile?

Fissa un appuntamento  Fissa un appuntamento

Richiedi informazioni

Clicca su Leggi per aprire l'informativa
* Questi campi sono obbligatori

Calcola il tuo mutuo

Semplice e senza impegno
Anticipo

( % )
Mutuo

( % )

pochi semplici passi

inserisci i tuoi dati
Questionario completato
Grazie per aver richiesto un appuntamento senza impegno con un nostro Consulente del Credito e Assicurativo.

Hai inserito correttamente tutti i dati necessari e a breve riceverai una e-mail con un link da convalidare per inviare i tuoi dati.
Affiliato
Castello.net Srl
Corso Biagio Rossetti, 31A 44121 Ferrara (FE)

Il nostro staff


  • Andra Maria Marginean
    Coordinatrice

  • Ambra Strazzeri
    Collaboratrice

  • Marco Fabbri
    Affiliato
Corso Biagio Rossetti, 31A 44121 Ferrara (FE)
Zona: Arianuova - Acquedotto - Stazione - Barco - Pontelagoscuro
Mostra su mappa
Orari: Dal lunedì al venerdì dalle ore 9.00 alle ore 13.00 e dalle ore 15.30 alle ore 19.30. Sabato dalle ore 9.00 alle ore 13.00
Affiliato
Castello.net Srl
Corso Biagio Rossetti, 31A 44121 Ferrara (FE)

2026 Tecnocasa Franchising S.p.A. - P. IVA 08365160152 - Via Monte Bianco 60/A 20089 Rozzano (MI). Ogni agenzia ha un proprio titolare ed è autonoma. Privacy policy | Policy utilizzo | Cookie policy