Bilocale in vendita

Ferrara, Via dei Carbonari - Pontelagoscuro
€ 73.000
2 locali 2 locali
62 Mq 62 Mq
1 bagno 1 bagno

Bilocale in vendita

Ferrara, Via dei Carbonari - Pontelagoscuro

Descrizione annuncio

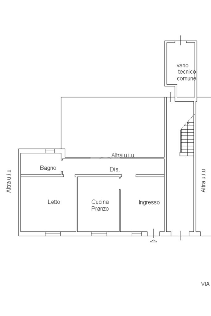
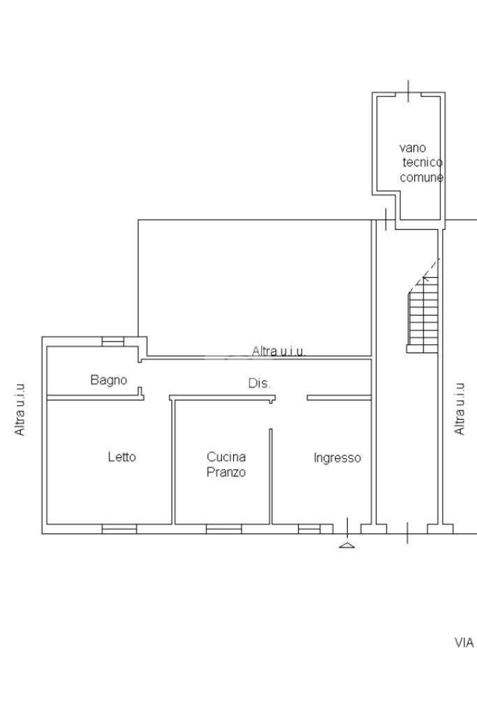
Nel centro di Pontelagoscuro, a pochi passi dalla piazza e da tutti i servizi è disponibile un accogliente appartamento di 62 mq, situato al piano terra.

La proprietà, offre un ingresso indipendente al piano terra che garantisce privacy e comodità. L'appartamento si compone di locali ben distribuiti: tra cui un ingresso con cucina a vista con lavello sotto la finestra da cui si accede ad una camera versatile, ideale per essere utilizzata come soggiorno o seconda camera da letto. Il lungo corridoio è arredato con un'ampia armadiatura. La camera da letto è spaziosa ed in fondo all'appartamento. Il bagno è funzionale ed è finestrato. Un comodo ripostiglio completa l'abitazione.

La porta di ingresso è un portoncino in legno mentre le finestre sono in legno corredate di zanzariere, tapparelle ed inferriate.

La posizione centrale nel paese permette di avere a portata di mano tutti i servizi essenziali, rendendo questa soluzione abitativa perfetta per chi desidera vivere in un contesto tranquillo ma ben collegato. Fermata dell'autobus di linea a pochi metri con passaggi ogni 10 minuti circa. Nelle immediate vicinanze possiamo trovare, inoltre, scuole, parco, ufficio postale, forno e tutti i servizi della piazza di Pontelagoscuro.

La disposizione degli spazi e l'accesso diretto dall'esterno rendono questa proprietà un'opportunità interessante per chi cerca una casa pratica e confortevole. Contattaci per maggiori dettagli o per organizzare una visita. 3283158781 / 0532478575

Mostra tutto

Nelle vicinanze

Trasporto pubblico Trasporto pubblico
stazione di Pontelagoscuro
stazione di Pontelagoscuro
670 m
stazione di Occhiobello
stazione di Occhiobello
2,6 Km
Corso del Popolo - Piazza Buozzi
Corso del Popolo - Piazza Buozzi
50 m
Vicenza
Vicenza
150 m
Ricariche auto elettriche Ricariche auto elettriche
Be Charge Santa Maria Maddalena Martiri
1,9 Km
Lidl Occhiobello
2,8 Km
Scuole Scuole
Scuola media Cosmè Tura
250 m
Scuola elementare Carmine della Sala
270 m
Scuole
2,3 Km
Farmacia Farmacia
Celtini
480 m
Salute
1,9 Km
Barco
2,3 Km
Farmacia
2,4 Km
Ospedali Ospedali
Casa di Cura Privata di S. M. Maddalena
1,4 Km
Supermercati Supermercati
Alta Sfera Cash & Carry
700 m
Aldi
720 m
EuroSpin
840 m
Conad
910 m
Super Rossetto
1,6 Km
Negozi Negozi
OVS
1,5 Km
Bar Bar
Discoteca Madame Butterfly
890 m
Discoteca "Giardini Sonori"
970 m
Tiffany
2,3 Km
Chiosco Bar
3,0 Km
Ristoranti Ristoranti
Hotel Ristorante Pizzeria "Da Santo"
290 m
Ponte Vecchio
620 m
Osteria Paninoteca "Patchanka"
730 m
Bar Ristorante "La Ferrarese"
810 m
Ristorante Pizzeria "Nonno Papero"
1,2 Km
Mostra tutto

Caratteristiche

Rif.:
61128843
Piano:
Terra di 3
Totale piani:
3
Camere da letto:
1
Arredamento:
Assente
Condizionamento:
Assente
Mostra tutto
Prezzo Prezzo
€ 73.000
Rata mutuo Rata mutuo
€ 347 / mese
Spese annue Spese annue
€ 1.600
Proponi il tuo prezzoProponi il tuo prezzo

Classe Energetica

G
G
G
G
G
G
G
G
G
EP invernale del fabbricato:
EP estiva del fabbricato:
Anno di costruzione:
1958
Riscaldamento:
Autonomo
Tipo impianto:
A radiatori
Tipo alimentazione:
Metano

Ti interessa visionare l'immobile?

Fissa un appuntamento  Fissa un appuntamento

Richiedi informazioni

Clicca su Leggi per aprire l'informativa
* Questi campi sono obbligatori

Calcola il tuo mutuo

Semplice e senza impegno
Anticipo

( % )
Mutuo

( % )

pochi semplici passi

inserisci i tuoi dati
Questionario completato
Grazie per aver richiesto un appuntamento senza impegno con un nostro Consulente del Credito e Assicurativo.

Hai inserito correttamente tutti i dati necessari e a breve riceverai una e-mail con un link da convalidare per inviare i tuoi dati.
Affiliato
Castello.net Srl
Corso Biagio Rossetti, 31A 44121 Ferrara (FE)

Il nostro staff


  • Andra Maria Marginean
    Coordinatrice

  • Ambra Strazzeri
    Collaboratrice

  • Marco Fabbri
    Affiliato
Corso Biagio Rossetti, 31A 44121 Ferrara (FE)
Zona: Arianuova - Acquedotto - Stazione - Barco - Pontelagoscuro
Mostra su mappa
Orari: Dal lunedì al venerdì dalle ore 9.00 alle ore 13.00 e dalle ore 15.30 alle ore 19.30. Sabato dalle ore 9.00 alle ore 13.00
Affiliato
Castello.net Srl
Corso Biagio Rossetti, 31A 44121 Ferrara (FE)

2026 Tecnocasa Franchising S.p.A. - P. IVA 08365160152 - Via Monte Bianco 60/A 20089 Rozzano (MI). Ogni agenzia ha un proprio titolare ed è autonoma. Privacy policy | Policy utilizzo | Cookie policy